The story of this beautiful house that stands on a slope is quite interesting and inspiring for its engineering feat. The plot is around 5 meters above the road and is on a steep slope. Besides, the rectangular plot in Konni, Kerala, posed many challenges when the family decided to dismantle their old house and build a new structure there. Though many tried to dissuade the family saying that the typical layout of the plot was not proper to build a modern and stylish home there, they were determined to go ahead with their plan.

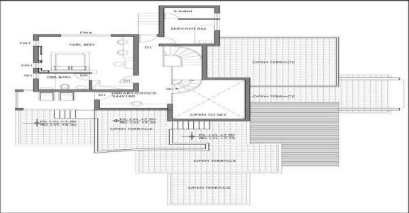
The interiors are designed in multiple levels, taking advantage of the sloped plot. The sit-out, formal and family living areas and two bedrooms are on the first floor. Meanwhile, the dining area, kitchen and the work area are on the next level which is just three steps above it. One has to climb seven steps from this level to reach the area where the master bedroom, the balcony and the courtyard have been arranged. The spiral stairway is a vital feature that connects all the levels in this house.

konni-house-living-new-JPG

The stair area and the kids’ room are on the next level. Meanwhile, there is a library, two more bedrooms and a balcony on the top-most floor. Interestingly, one can get to the back yard of the house from this level.

konni-house-front-view

A stylish blend of flat, sloped and curved roof in multiple layers is stunningly attractive. Some portion of the ceiling is done in the ‘open to sky method’ and is secured with a pergola glass roof. The remote controlled sliding roof is the most interesting feature here. Centralized air conditioning makes the interiors extremely cool and comfortable.

konni-house-interior
ADVERTISEMENT

Vitrified tiles are paved on the floor. Meanwhile, the custom-made furniture was made on the site itself. The kitchen is furnished in multi-wood with PU paint finish.

konni-house-bed

There are side and front porches in this house to accommodate more vehicles. The designer feature made using hard rocks in front of the house is unique and eye-catching. It was quite a task to artistically arrange the hard rocks without any gap and then embellish with white beading to build this spectacular feature.

konni-house-dine
ADVERTISEMENT

During the construction, it was difficult for the earth-movers to reach the plot as the terrain was quite treacherous. However, designer Mejo Kurian is happy and proud that he and an excellent team of workers could overcome such challenges and build the fabulous abode. Meanwhile, the family too is now thrilled that they have got a brand new house just as they had dreamed.

konni-house-upper-new-JPG

Project Facts

konni-house-gf
konni-house-ff
konni-house-sf-new
ADVERTISEMENT

Location – Konni, Pathanamthitta

Plot – 1 acre

Area – 2900 SFT

Owner – Baiju Varghese

Designer – Mejo Kurian

Voyage Designs, Vytilla

Mob – 97456 40027

The comments posted here/below/in the given space are not on behalf of Onmanorama. The person posting the comment will be in sole ownership of its responsibility. According to the central government's IT rules, obscene or offensive statement made against a person, religion, community or nation is a punishable offense, and legal action would be taken against people who indulge in such activities.