Nandu is excited to share his experiences of building his dream dwelling on a very moderate budget of Rs 15 lakh.

“We had been living in a small house on the 9 cents plot on the banks of the Meenachil River at Arpookkara in Kottayam, Kerala, for years. The quaint house had limited facilities. Our house would get flooded every year during monsoon. When I and my sister were kids, we used to enjoy it. However, the water level kept rising every year. I flew to Abu Dhabi after completing my studies. My house was almost under water during the last two floods. So, my father decided to dismantle the house and rebuild it after raising the plot a bit. Meanwhile, I was getting bored of life abroad. I quit my job and informed my parents about it. My father then replied that he had already dismantled the house and there was no place for me to live when I come back. Though it was a bit confusing, I decided to return with whatever savings I had,” says Nandu.

The family was involved in all stages of construction as they didn’t want to entrust the construction works to a contractor. The plot was raised up to three meters using sand and hard rocks to prevent the flood waters from gushing into the house. This alone had cost around Rs 3.5 lakhs. Meanwhile, the rest of the construction could be completed on a budget of Rs 11.5 lakh.

nandu-house-kottayam-living-new

The initial plan was to build a concrete-roofed house. However, the family decided to install a GI truss roof paved with tiles, to reduce the expenses. A minimal gypsum false ceiling, meanwhile, adds a chic look to the interiors. Nandu says they weren’t ready to compromise on the quality of the building materials even though they wanted to build a low cost house. They, instead, used alternative materials that are moderately priced. The house has entrances both in the front and at the back. Interestingly, the house dons unique looks from both the sides.

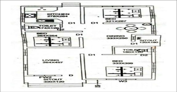
Designed in 900 sq ft area, this beautiful house has a sit-out, living and dining areas, kitchen with a work area and three bedrooms. Making the spaces more efficient by reducing the area in square feet contributed in keeping a check on the expenses.

nandu-house-kottayam

Nandu says they had decided to give only the exterior walls a putty finish, in the beginning. However, both the exterior and the interior walls have been given putty finish to make the house look perfect. The furniture, meanwhile, are made using inexpensive timber like acacia and irul wood. The floor has been paved with marbonite.

nandu-house-kottayam-exterior

The sit-out beside the dining area opens to the stunning view of the river. The cool breeze that flows from the river enters the house when the door here is opened.

The bedrooms are simple yet comfortable. Only one bedroom is bath attached. Besides, there is a common bathroom as well. The kitchen cabinets are done using aluminum fabrication. The counter top, meanwhile, is paved with granite.

nandu-house-kottayam-dine

“My friends were quite attached to my old house. So, they supported us, both financially and mentally. We could build our brand new house with the help and wholehearted support of many good people. I clearly know how difficult it is for a common man to build a house of his own. So, I am sharing the plan of my house here. Those who require it can use it,” says Nandu.

Among the various factors that helped in keeping a check on the expenses, reducing the area in square feet played a pivotal role. The GI truss roof is paved with mud tiles. The kitchen, meanwhile, is furnished in aluminium fabrication. Moreover, expensive timber isn’t used for furniture. Acacia which is relatively inexpensive was used to make the elegant furniture pieces.

Project Facts

nandu-house-kottayam-plan

Location – Arpookkara, Kottayam

Plot – 9 cents

Area – 900 SFT

Owner – Nandu

Mob – 7736493383

Year of completion – 2020 September

Budget – Rs 15 lakhs

The comments posted here/below/in the given space are not on behalf of Onmanorama. The person posting the comment will be in sole ownership of its responsibility. According to the central government's IT rules, obscene or offensive statement made against a person, religion, community or nation is a punishable offense, and legal action would be taken against people who indulge in such activities.