Hussian has built his brand new house at his hometown in Pookkottur in Malappuram district, Kerala. The family wanted a spacious house where the uninterrupted supply of natural light and air fills the interiors with positive vibes.

The exteriors feature a chic blend of the contemporary and the colonial architectural styles. Meanwhile, the majestic beauty of the elevation could be viewed in all its grandeur as the structure is built by leaving a lot of space in the front. The front yard has been paved with natural stones and grass in alternate layers.

elegant-house-living-JPG

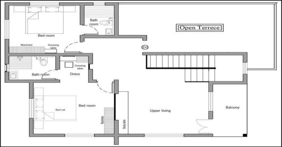
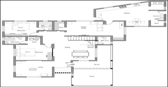
Designed in 2800 sqft, this fabulous abode has a sit out, formal and family living areas, dining space, four bedrooms and an upper living area.

A passage which begins from the entrance area is what connects the spaces in the interiors. Wooden finished tiles have been paved on the floor here to highlight the passage. Meanwhile, vitrified tiles have been used for flooring in the rest of the house.

ADVERTISEMENT

The interiors are arranged in a semi-open style to allow communication between the spaces. Moreover, this makes the interiors look vaster too. The huge windows ensure excellent cross ventilation. An elegant ‘C’ shaped couch adorns the formal living area. The custom made furniture looks spectacular and matches the general theme of the house. The design of the chairs in the dining area is quite interesting. A crockery shelf too has been arranged here for storage.

elegant-home-exterior

The courtyard, meanwhile, is arranged beside the dining area by installing vertical pergola. The floor here is paved with synthetic grass. Lots of natural light enter the house through these pergolas, illuminating the dining area with golden sunshine.

elegant-home-night-JPG
ADVERTISEMENT

A plywood semi partition separates the wash area and the stair area. The niches and curious make it an attractive designer feature too.

elegant-home-bed-JPG

Two bedrooms each are arranged in both the floors. The bath attached bedrooms have full length wardrobes for storage.

elegant-home-dine-JPG
ADVERTISEMENT

A spacious kitchen with an adjacent work area is a highlight. The cabinets are done in mica with laminate finish. Meanwhile, the counter top has been paved with granite. A quaint breakfast counter completes the kitchen area.

elegant-home-kitchen-JPG

Excellent flow of cool air and the spaces that are illuminated with natural sun shine definitely fills this smartly designed house with oodles of positive energy. The family is joyous that their dream dwelling is more beautiful and efficient than they had imagined.

ground-floor-plan
first-floor-plan

Project Facts

Location – Pookkottur, Malappuram

Plot – 25 cents

Area – 2800 SFT

Owner – Hussain

Designer – Jamsheed T

Elemento Architectural Studio, Manjeri

Mob – 9995020311

Year of completion – 2020 November

Pictures – Ajeeb Komachy

The comments posted here/below/in the given space are not on behalf of Onmanorama. The person posting the comment will be in sole ownership of its responsibility. According to the central government's IT rules, obscene or offensive statement made against a person, religion, community or nation is a punishable offense, and legal action would be taken against people who indulge in such activities.